Aller au contenu principal
Retour à la recherche

Maison 8 pièces, 261 m2

Réf. : 14097-1040381-14097
Dernière mise à jour de l’annonce : 05/11/2025

Vente

499 000 € (honoraires de négociation inclus)
Honoraires à la charge du vendeur
14340 Rumesnil
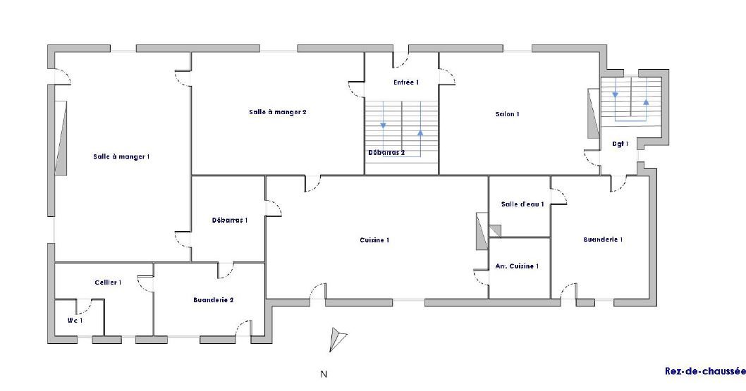
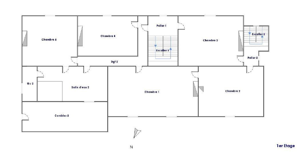
RUMESNIL - Manoir du début XIXème, composé : Au rez-de-chaussée : une entrée spacieuse desservant le salon, le séjour avec cheminée, salle à manger, cuisine, arrière cuisine, buanderie, annexe et WC. Pièce à usage de cuisine d'hiver et salle de douche avec WC. L'étage : 5 chambres et une salle de douche avec WC Au deuxième : combles avec deux pièces aménagées. Bâtisse Normande de 69 m², classée aux monument historique avec un CU opérationnel positif pour une réhabilitation en maison. Hangar agricole de 660m² au sol. Sur 20 630 m² de terrain plat et arboré, dans un environnement bucolique. Travaux de rénovation à prévoir sur l'ensemble Les informations sur les risques auxquels ce bien est exposé sont disponibles sur le site Géorisques : georisques.gouv.fr

Général

Nombre de pièces : 8
Nombre de chambres : 5
Surface :  261 m2
Surface Carrez :  262 m2
Etat : A rénover
Nombre de niveaux : 1
Exposition :  Sud

Bilan énergétique

Date du diagnostic :  30-04-2024
DPE
Logement économe
371 kwh/m²/an
Logement énergivore
GES
Faible émission de GES
11 kg CO₂/m²/an
Forte émission de GES

Depuis le 1er juillet 2021, c’est la plus mauvaise des deux performances (DPE ou GES) qui est retenue au final.

Équipements

Stationnement : Oui

Conditions de vente

Prix HNI :  499 000 €
(honoraires de négociation inclus)
Type d'honoraires :  À la charge du vendeur

Contact

Adresse : 42 Rue Hamelin
Code postal :  14130
Ville :  PONT L EVEQUE