Réf. : 14097-936132-14097
Dernière mise à jour de l’annonce : 07/01/2026
238 000 €
(honoraires de négociation inclus)
Honoraires à la charge du vendeur
27260 Cormeilles
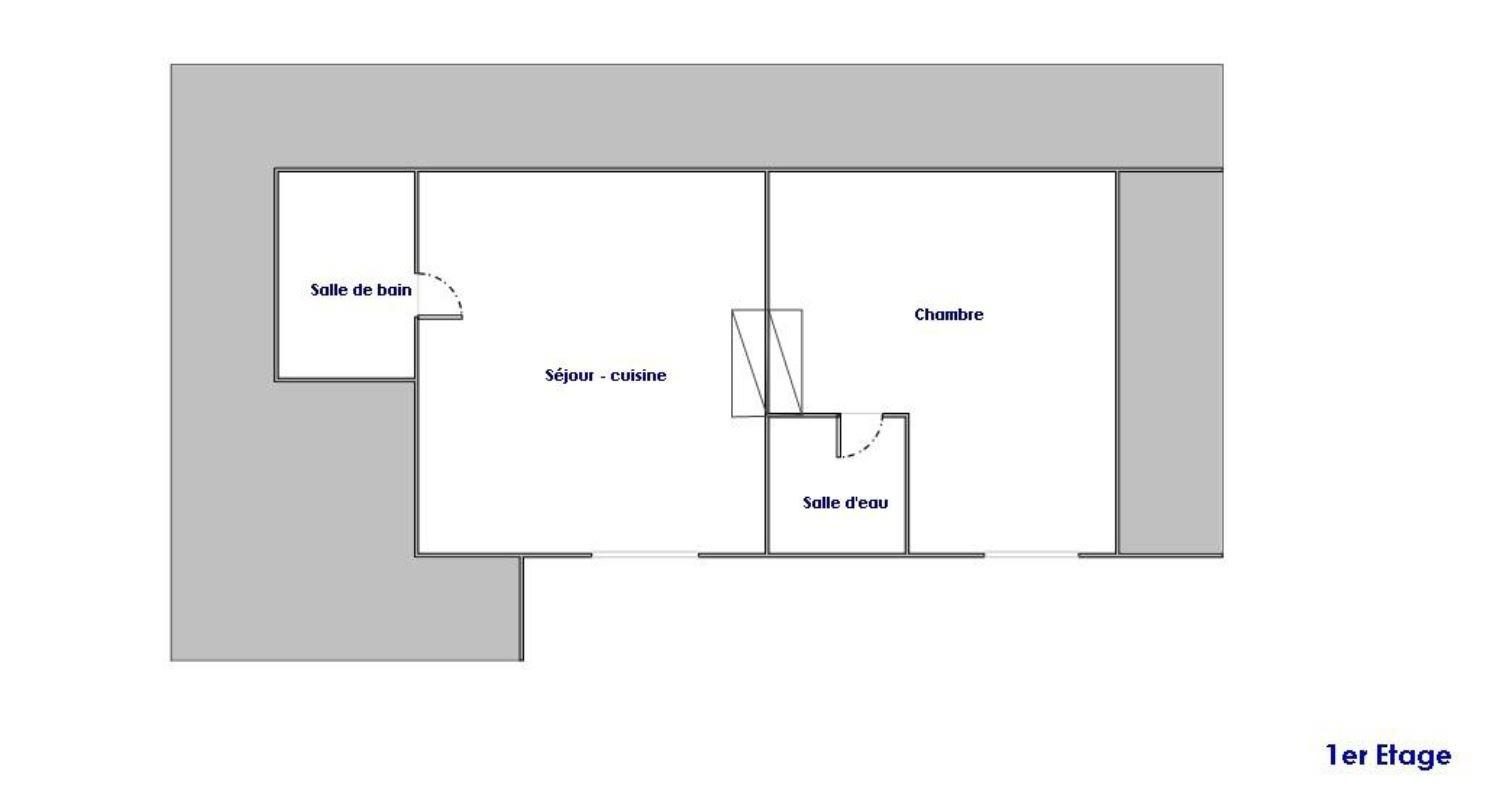
CORMEILLES, immeuble rapport composé de quatre appartements :
- Au premier étage : un T2 de 22m², loyer de 330€ / mois plus 20€ charges (loue). Un T2 de 29m² loué 430€ / mois et 20€ de charges, avec cave, (loué).
- Au deuxième étage : deux appartements. Un de 24 m², loyer de 370€ / mois plus 20€ charges (libre). L'autre de 28 m², loyer de 370€ / mois plus 20€ charges (libre).
- 6 caves au rez-de-chaussée.
Dans une impasse, sur parcelle de 141m².
Les informations sur les risques auxquels ce bien est exposé sont disponibles sur le site Géorisques : www. georisques. gouv. fr Les informations sur les risques auxquels ce bien est exposé sont disponibles sur le site Géorisques : georisques.gouv.fr