Aller au contenu principal
Réf. : 50026-980744-50026
Dernière mise à jour de l’annonce : 25/03/2026

Vente

73 402 € (honoraires de négociation inclus)
Honoraires à la charge du vendeur
50290 Coudeville-sur-Mer
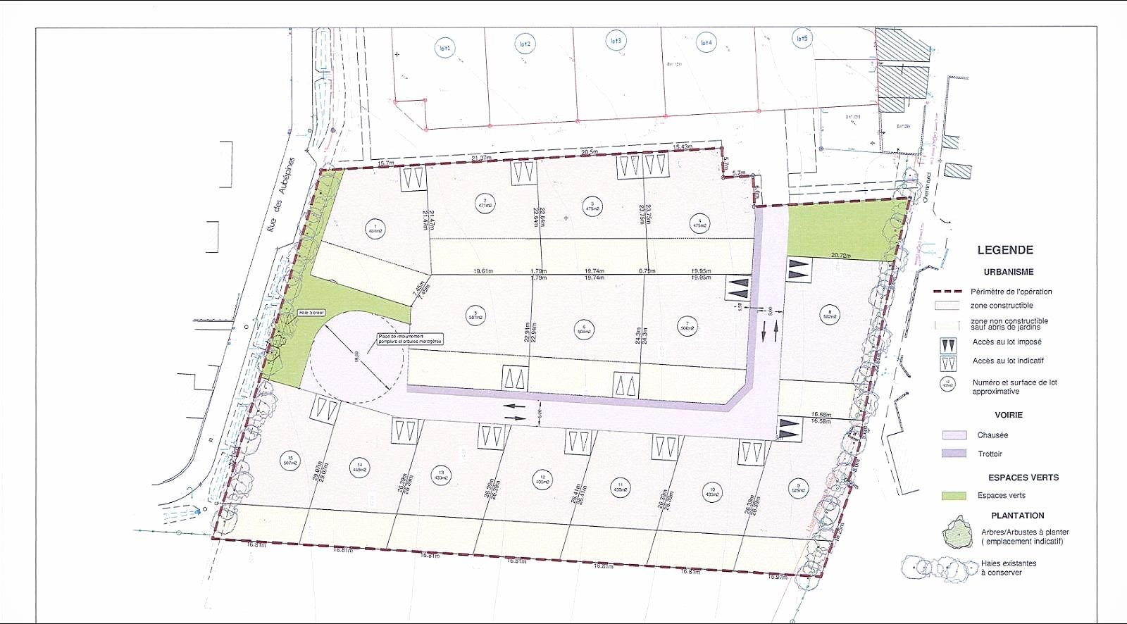
Dans le bourg, terrains en lotissement pour une superficie de 433 m² à 582 m². 4 lots viabilisés, prix allant de 73.402,16 € à 90.762,00 € les honoraires de négociation sont à la charge du vendeur. Descriptif des lots : LOT 7 : superficie 506 m² - prix 78.936,00 € LOT 9 : superficie 525 m² - prix 88.998,00 € LOT 10 : superficie 433 m² - prix 73.402,16 € LOT 11 : superficie 433 m² - prix 73.402,16 € Les terrains sont libres de constructeur, l'étude vous propose en collaboration avec le constructeur ' Maisons Le Masson' deux projets. Pour plus de renseignements ou demande de visite veuillez contacter Marina PAUL au 06.07.90.32.75 ou à l'adresse suivante marina.paul.50026@notaires.fr Les informations sur les risques auxquels ce bien est exposé sont disponibles sur le site Géorisques : georisques.gouv.fr

Conditions de vente

Prix HNI :  73 402 €
(honoraires de négociation inclus)
Type d'honoraires :  À la charge du vendeur

Contact

Négociateur : Marina PAUL
Téléphone : 06 07 90 32 75
Adresse : 9 Rue Clément Desmaisons
Code postal :  50400
Ville :  GRANVILLE