Aller au contenu principal
Réf. : 50108-4667
Dernière mise à jour de l’annonce : 07/04/2026

Vente

51 129 € (Honoraires de négociation inclus)
48 788 € (Prix net vendeur)
Montant des honoraires : 2 341 €
Pourcentage des honoraires : 5 %
Honoraires à la charge de l'acquéreur
50270 La Haye-d'Ectot
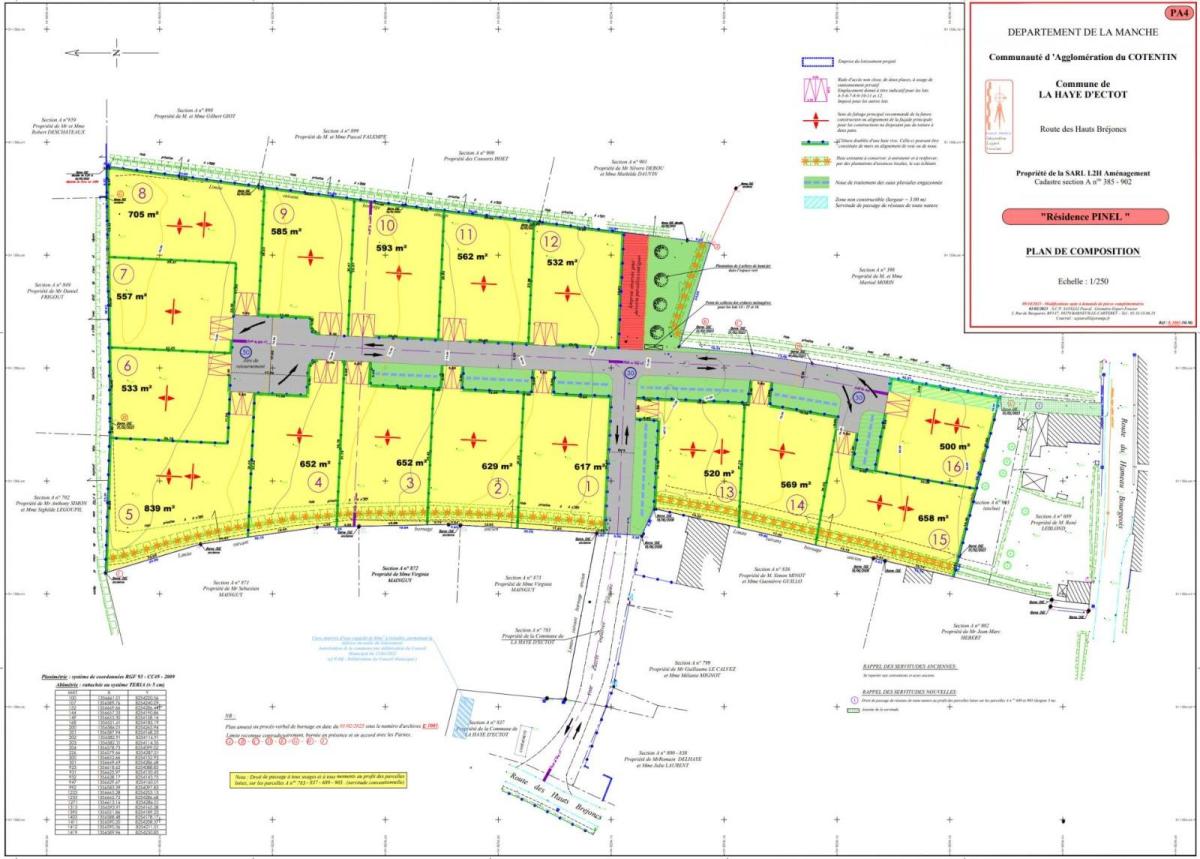
Lots de terrains à bâtir, viabilisés, situés à LA HAYE D'ECTOT :  LOT NUMERO 1 d'une surface de 617m², prix : 61 652 € HNI LOT NUMERO 3 d'une surface de 652m², prix : 56 872 € HNI LOT NUMERO 7 d'une surface de 557 m², prix : 51 129 € HNI LOT NUMERO 9 d'une surface de 585 m², prix : 52 546 € HNI LOT NUMERO 10 d'une surface de 593 m², prix : 53 250 € HNI LOT NUMERO 11 d'une surface de 562 m², prix : 51 563 € HNI LOT NUMERO 14 d'une surface de 569 m², prix : 52 188 € HNI

Conditions de vente

Prix HNI :  51 129 €
(honoraires de négociation inclus)
Prix net vendeur :  48 788 €
Honoraires :  2 341 € (Montant des honoraires de négociation)
Pourcentage d'honoraires :  5 %
Frais d’acte :  5 863 €
Type d'honoraires :  À la charge de l'acquéreur

Contact

Négociateur : Laura FORTIN
Téléphone : 02 33 01 68 69
Adresse : 30 Rue François-la-Vieille
Code postal :  50100
Ville :  Cherbourg-en-Cotentin